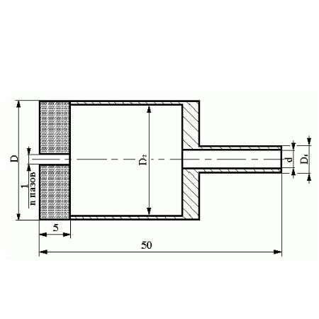
Diamond drills, consisting of a tubular steel body and an annular diamond-containing layer, are used to produce holes in hard-to-work materials, such as glass, quartz, porcelain, natural stone, and concrete.
High performance guaranteed using:
Possible to manufacture drills with diameters from 1.5 mm to 150 mm.










